Biblioteca Comarcal del Solsonès
Solsona
2015
1.620 m2 edificació + 260 m2 exteriors
Catalogació BCIN i BCIL
Fotografia Víctor Pallarès i Francesc Meseguer
Premiada VII Mostra Arquitectura Comarques Centrals
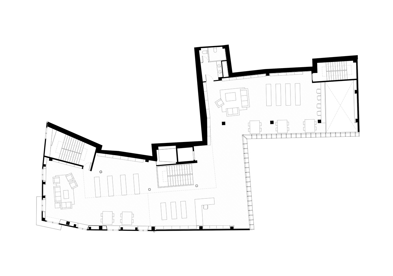
La biblioteca s’emplaça en una illa de cases de cos del Nucli Antic de Solsona on abunden elements patrimonials i vestigis medievals. Es restaura l’esperit del lloc adequant la distribució i els desnivells del nou equipament per conviure equilibradament amb les preexistències. L’emplaçament desdibuixat es recupera, actuant a la façana catalogada de Cal Morató i a la plaça medieval amb els seus arcs, que s’expliquen des del teló de fons de la nova façana vidriada.
© 2025 Feu i Godoy Arquitectes SLP Avís Legal Política de privacitat Política de cookies

















