Escola El Virolet
Sabadell
2023
3.700 m² + 5.180 m² urbanització
Fotografia Oriol Gómez
Col·laboració amb Mateo Closa
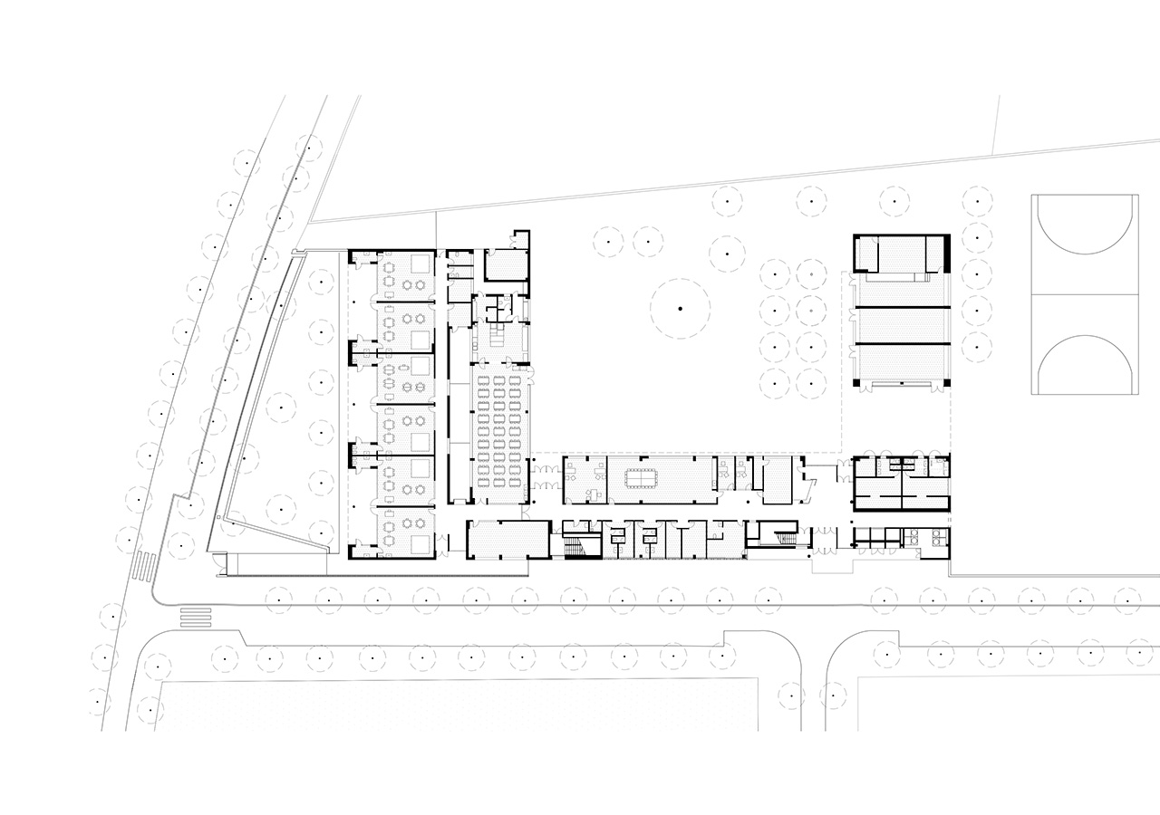
La proximitat del curs natural d’aigua del Torrent de Can Feu genera àmbits verds que el projecte replica disposant l’edifici al centre de la parcel·la i en forma de U, permetent generar 3 espais oberts que endrecen els usos: un pati central per ús de primària amb el gran pi com a protagonista, un pati a sudoest per a ús infantili amb vistes al torrent, i un pati a sud-est que s’obre cap al parc d’Odessa i on es situa la pista esportiva. Tots tres en diàleg amb la pauta verda marcada pel torrent i la seva arbreda.
© 2025 Feu i Godoy Arquitectes SLP Avís Legal Política de privacitat Política de cookies
















