Hotel Vegà Casa Albets
Lladurs
2017
1.535 m2
Protegida Catàleg de Masies
Fotografia Carles Llurda i Víctor Pallarès
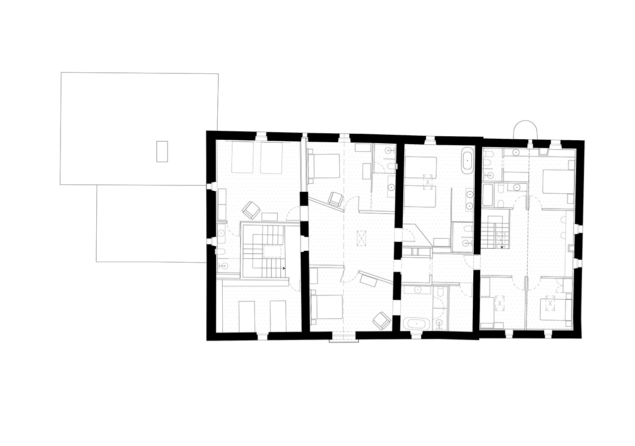
Casa Albets és una masia catalogada del segle XI situada en un entorn privilegiat en total relació amb la natura, envoltada de boscos de la finca i amb espectaculars vistes cap a la serralada del Port del Comte.
La transformació de la masia en hotel vegà de 4* ha requerit un exercici arquitectònic transparent i sincer que permet una fàcil lectura dels valors patrimonials, respectant el seu caràcter singular i potenciant el seu esperit ecològic i vegà.
© 2025 Feu i Godoy Arquitectes SLP Avís Legal Política de privacitat Política de cookies

















