La Humanitària
Térmens
2024
350 m² + 155 m² urbanització
Catalogació BCIL
Fotografia Oriol Gómez
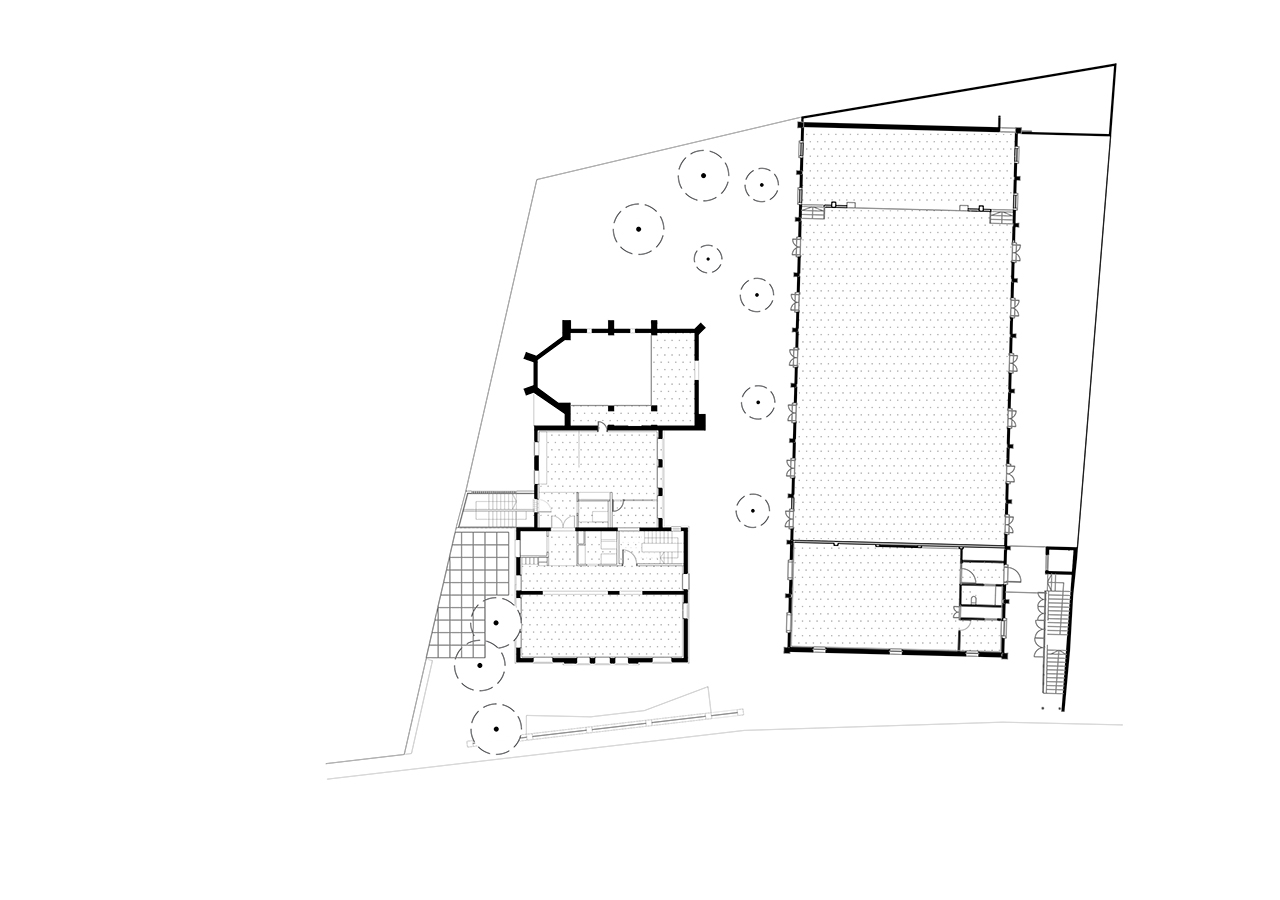
A principis del segle XX, l’antiga sala de festes de La Humanitària era un dels punts de trobada de la vil·la de Térmens. Posteriorment es va reconvertir en una fàbrica tèxtil que va distorsionar els trets característics de l’edifici, com l’accés, l’escenari, el volum de la sala o les façanes.
La intervenció recupera l’ús de la sala i la seva morfologia originals, iniciant la reforma des de l’accés: un gran espai de 10m d’alçada, on s’ubica un local social en planta baixa i una sala polivalent en planta primera, nivell que mai havia existit i que ha de funcionar independent. Per accedir a la sala polivalent es construeix un nou volum ceràmic adossat a la mitgera que conté l’escala i l’ascensor i que es separa respectuosament de l’edifici original amb el qual connecta a través d’una passera. Durant la intervenció es va poder recuperar la façana tal com era originalment.
© 2025 Feu i Godoy Arquitectes SLP Avís Legal Política de privacitat Política de cookies











